Favourties Favourites

Your favourite properties

Characteristic Property for sale near Cortona

€1,800,000 $1,962,000
$
Location Cortona, Tuscany

Ref #: V59481

ITALY, TUSCANY, AREZZO, CORTONA

Farmhouse of about 530 sqm with swimming pool and outbuildings on a panoramic hillside in Cortona.

Description
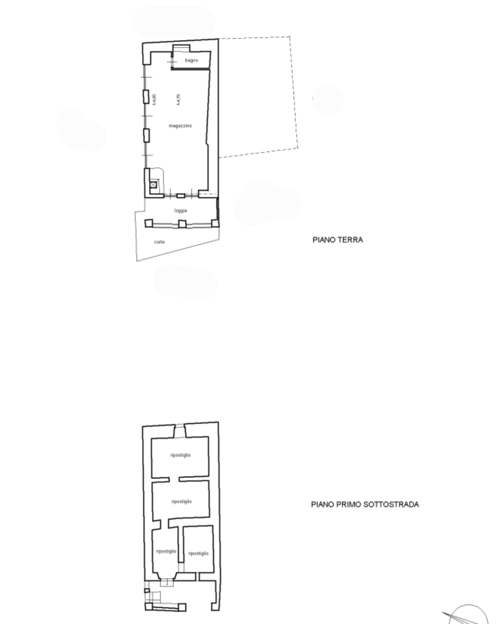
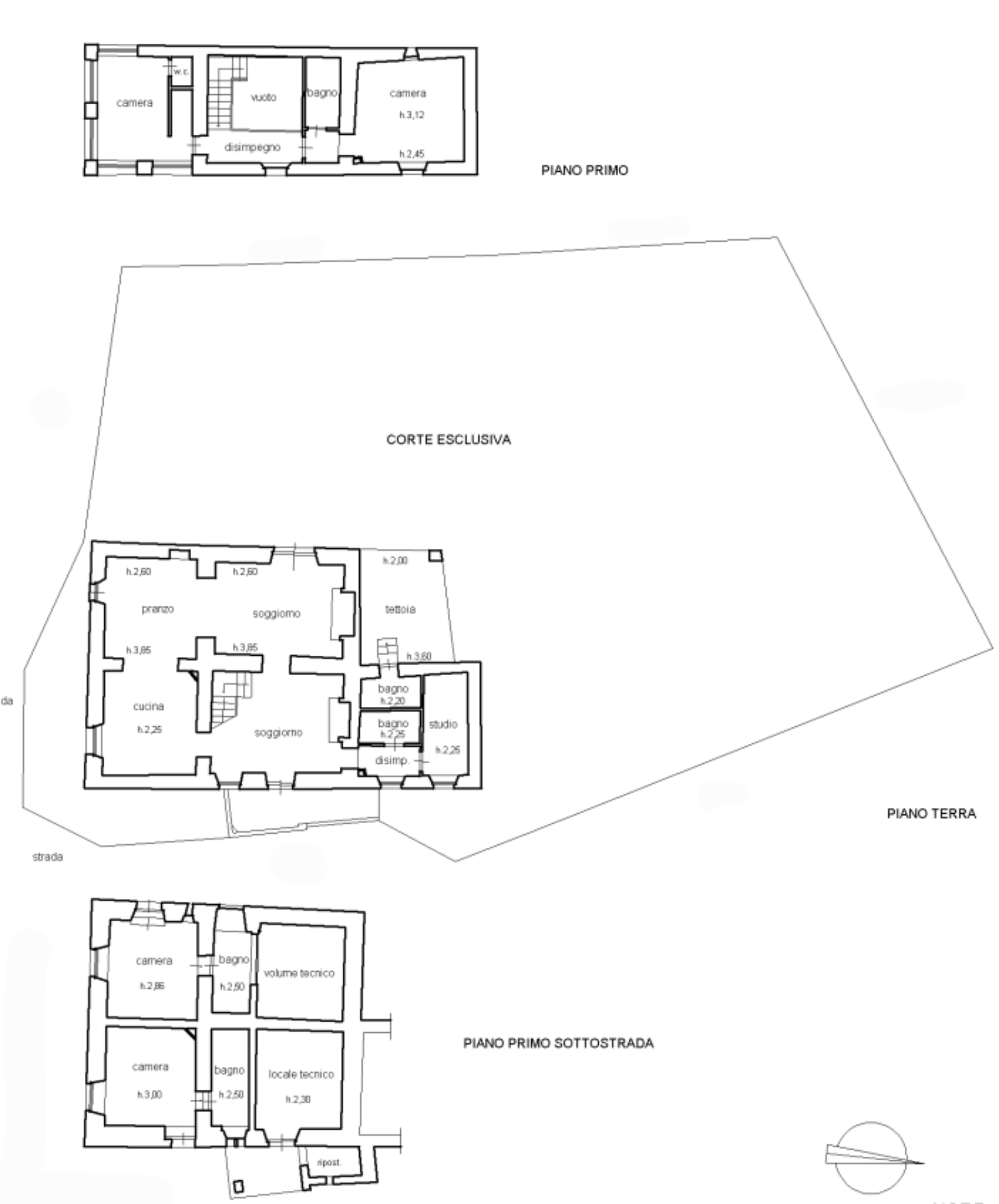
The farmhouse is located in an extremely panoramic and exclusive area among the hills of Cortona. There are 3 main buildings on 3 levels for about 530 sqm.

The main farmhouse houses a master apartment consisting of large double living area with antique fireplace, kitchen diner, dining room, a study and a bathroom on the ground floor.

On the first floor there are 2 bedrooms with beautiful panoramic views and 2 bathrooms. In the basement there are two bedrooms with private bathrooms and independent entrances. Also present are a technical room and a laundry room.

Detached by a few steps we find the second unit that houses on the ground floor 2 more bedrooms and 2 private bathrooms. In the basement there is a cellar and storage rooms.

The last unit has a very large room with large windows currently used as a relaxation area with games and heights of more than 4m. Also present is a bathroom, and in the basement there are storage rooms.

Outbuildings
Also close to the main house there is a characteristic turret on two levels ideal for fully enjoying the beautiful view of the hills in the area.

Condition and finishes
The property is in excellent condition after a skillful renovation in 2019. It has the typical Cortona stone exterior, a cotto roof, parquet floors and wooden beams for the ceilings. Present is air conditioning, central heating powered by LPG and a well for water. Wi-fi connection and utilities all connected.

Outdoor space
The property has a beautiful swimming pool with views and a veranda that houses a nice relaxation area, with barbecue and a bathroom.

The total land is about 1.6 hectares around the farmhouse.

Potential uses
The property would be an excellent private residence in a privileged and quiet location in which to breathe in the true atmosphere of the Tuscan countryside. It is also very valid for renting out, being able to enjoy many rooms and spaces already divided in its current state. Some parts of the property not renovated in 2019 can increase the number of rooms to maximize the tourist income.

Location & Lifestyle
Situated in the hills above an ancient village in the town of Cortona, close to the Apennine and lake area of Umbria, this historic property enjoys a quiet and secluded location, just minutes from small towns in the area useful for daily services. There is about 2 km of dirt road. The center of Cortona is about a 25-minute drive away as are other quaint towns such as Passignano sul Trasimeno, Magione and Umbertide. The small village enjoys a bus line stop while always 20/25 minutes away are road connections to the cities of Arezzo, Perugia, Siena and Florence, as well as the train station with direct connections to Rome and Florence.

Address: Cortona, Tuscany

Location type: Rural

Condition: Restored

Bedrooms: 6

Bathrooms: 9

Property size: 570 sqm

Land size: 1.6 hectares

With a pool
Has annex/es
Internet
Features
air conditioning
barbecue
beams
cellar
Character property
Fireplace
hillside
multiple buildings
parquet
restored
storage
swimming pool
turret
wifi

Similar Properties

FAQs

What is a notary?

A notary is a qualified lawyer who is employed by the Italian government. When you are buying Italian property, it is a notary who conducts the legal transfer of a property from vendor to buyer, and prepares the deed of sale, checks there are no charges on the property, title issues and with the assistance of a technician such as a geometra or architect, checks the property conforms to all planning issues.

It is always the buyer and not the vendor who pays the purchase taxes due and who pays the notary fees also. This means that it is up to the buyer which notary is used. In practice it is usually one of the local notaries and we can recommend which one to use and which one is cheapest, as notary prices do vary.

We provide a detailed list of all fees and taxes (including the notary’s quote) before you sign any contracts.

Translator – if you do not speak fluent, enough to understand detailed legal contracts, you will need to have a translator at the notary deed. Your agent or the notary will usually arrange this so you don’t need to worry about it. The cost varies but is often 200-300 euros. This can sometimes be shared with the vendor if they are also non fluent in Italian.

What taxes are payable for a property purchase in Italy?

This depends firstly on two things.
A. Are you buying as a resident or a non resident?
B. Are you buying from private individuals or from a company?

If you are buying from private individuals, then the taxes you pay are based on the cadastral value – a nominal value which each property has and which depends on its size, location, standard etc – nothing to do with the market value.

Example 1:
House price agreed €100,000.
Property belongs to private sellers.
Cadastral value of the property €32,000.

Let’s say you intend buying the house as a non resident (.ie. you do not intend moving to Italy permanently and applying for residency).
Taxes payable are 9% on cadastral value €32,000 so €2,880 plus a few smaller fixed taxes.

Or, if you intend moving to live in the house permanently, applying for Italian residency, then as long as you don’t already own another property in Italy;
Taxes payable are 2% on cadastral value €32,000 so €640 plus a few smaller fixed taxes. A minimum figure may be payable.

Please note, you could buy the house as a resident and pay the lower rate of tax if you intend moving there and obtaining residency within the next 18 months. Don’t be tempted to do this unless you are definitely sure you will become a resident. If you then do not, you need to pay the difference in taxes plus a penalty of around 30%.

If there is substantial land (not just a garden) with the property, then 15% is payable on the value attributed to the land, which can be quite low, eg a value of €15,000 could be attributed to the land so 15% of 15,000 = €2,250 would be the tax on the land.

Example 2:
House price €100,000
Property is being sold by a company
Cadastral value of the property is €32,000

Let’s say you intend buying the house as a non resident (i.e. you do not intend moving to Italy permanently and applying for residency).
Taxes payable are 10% VAT on full market price €100,000 so €10,000 plus a few smaller fixed taxes.

Or, if you intend moving to live in the house permanently, applying for Italian residency, then as long as you don’t already own another property in Italy,
Taxes payable are 4% VAT on €100,000 so €4,000 plus a few smaller fixed taxes.

Once we know
– which house you want to buy, its cadastral value and who owns it (company/individual)
– whether you intend to buy as a resident/non resident and if it’s your first property in Italy

only then can we ask the notary to provide a quote for the precise taxes payable.

Other circumstances

Then of course there are other scenarios.

If the value of the property you want to buy is very low (eg €50,000) then purchase costs are likely to be a higher percentage as there are set minimums to pay for all fees and taxes. So on a €50,000 house, you are likely to pay 12-15% instead of 10% (non resident).

You might want to buy a property (being sold by private individuals) with your company. Taxes are considerably higher in this case, as they would be 9% on the sale price (not on the cadastral value). So it’s cheaper to buy a privately owned property as a private individual, not as a company.

But, in the case of a country property which is a farm/winery/agriturismo, these are often owned by a farming company (azienda agricola) , which has considerable tax advantages as you can buy the farm and pay just 0-1% (depending on the circumstances) on the purchase price in tax.

If you buy directly an existing farm (ie a farming company with no other assets within the company), you just pay the fees for buying the shares in a company – ie an accountant, a notary and some small fixed taxes.
If you set up a farming company (the property must have all the requisites to be a farm) with a board of directors and an IAP (professional farmer) to buy the property and land you pay 1% on the sale price.
In both cases above, you are buying as a company so being a resident or non resident doesn’t come into it, you are not buying as a physical person.
So buying an existing farm, or setting one up, has tax advantages, compared to buying a property, especially as a non resident. However there are of course costs involved in running the company, so it’s best to seek the advice of an Italian accountant.

Taxes would be different for a commercial purchase, eg if your company is buying an Italian company (ie a farm or other company). Buying the shares of a company usually meets zero taxes, just a few fixed fees, and notary and accountancy fees.

The above is a guide, and once you have found a property you are interested in buying, we can obtain a notary quote for you, with a full breakdown of the taxes and fees due.

What other purchase costs are there?

Notary fees – approx 1-2%, more for a lower priced property due to some fixed taxes.

Agency fees – in Italy both buyer and seller pay the agent. These are payable to the Italian agent  (one of our partners) you view the house with at compromesso (preliminary contract) stage and for each party are usually 3% plus VAT. VAT is 22% in Italy. Minimums apply. Nothing is payable to Casa Tuscany so you will not pay double the fees, you will just have double the assistance!

Compromesso registration fees – approx €380 plus a part payment of taxes which is deducted from the total taxes due at completion.

Translator for the deed signing at the notary’s office. Required if you do not speak Italian well enough to understand legal deeds. Approx cost €250 – €350 depending on the notary.

Technical report for the notary.  Checks all the planning issues of the property, making sure it matches the official plans, no works have been carried out without permission, gathers all previous permits, checks the house is sellable and not illegal in any way. Carried out by a geometra, architect or engineer and costs vary considerably, a minimum of €761 including VAT/ Please note this report is NOT a structural survey, that is an optional additional report you may wish to instruct.

What annual costs are there? How should I pay them?

Local council tax – IMU (formerly ICI) – payable only by non residents. This needs to be paid twice a year at the post office – no bill is sent. Most people use a local accountant or property manager to calculate it.

Refuse tax (TARI)

In some areas, mountain community tax.

If you buy a property which is part of a condominium, e.g. with shared pool and grounds, lighting etc, then there will be annual condominium fees to pay which usually range from about €200 to €1000/year unless it is a particularly luxurious property with many amenities in which case costs could be higher.

Utilities

Do I need an Italian bank account?

You don’t really need an Italian bank account for buying a property in Italy any more as money is usually sent by bank transfer, although some notaries insist the funds are sent from an Italian account set up by you.

You could of course open an account to handle bills but bear in mind that some utilities companies refuse to arrange direct debits for non resident accounts, and some bills cannot be paid by direct debit.
You could always pay your bills online or if you have a property manager then send them the funds for settling all the bills.
If you do intend opening an Italian bank account, bear in mind that Italian bank charges are high . Usually there is a monthly fee to pay, plus charges for receiving money, paying bills, sending statements, etc etc.

View more

Sign up to receive our monthly newsletter with new listings, reductions and news.

This field is for validation purposes and should be left unchanged.
Submit

Enquire about Characteristic Property for sale near Cortona

This field is for validation purposes and should be left unchanged.
Submit