Ref #: V3487AB
Ref #: V3487AB
DRONE:
Nestled in the fascinating scenery of Chianti Classico, between Gaiole in Chianti and Siena, the estate comprises a beautifully restored villa of 420 sqm, with a 14th century watch tower, once home to the guards of the Cerreto Castle, the ruins of which can be visited nearby. There is also a guest annex of 140 sqm. The estate has 27 hectares of land, consisting of olives, vineyards (4.5 hectares) and woods. The estate produces its own wine. Grape varieties Cabernet, Merlot and Sangiovese. 150 olive trees. There is also a large swimming pool.
Renovated in 1998, The main house has a watch tower to which two lateral structures were added over time. This particular layout, with the annex separate from the main villa, make the property ideal for large groups who can have their own privacy when needed.
Due to its traditional stone construction and hilltop position, the property remains cool during the summer months. The spacious grassy lawns of the estate are perfect for families with children. The location is ideal for wine lovers because it is a great starting point for trips to Chianti Classico and its charming villages of Gaiole, Castellina, the Castle of Brolio, which are to be found within 10 miles of the Villa.
The exterior features ancient stone, porticos and loggias which harmoniously create a fascinating residence full of character and history.
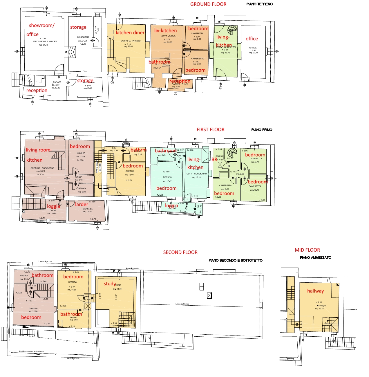
The ground floor houses several living areas well connected with brick arches, two kitchens with direct access to the pergola and the garden, an office and a laundry.
The upper floors present two living rooms with a fireplace, a high ceiling study on top of the tower along with marvelous wooden beams, spectacular scenarios and views from the windows, completed by a total of eight bedrooms.
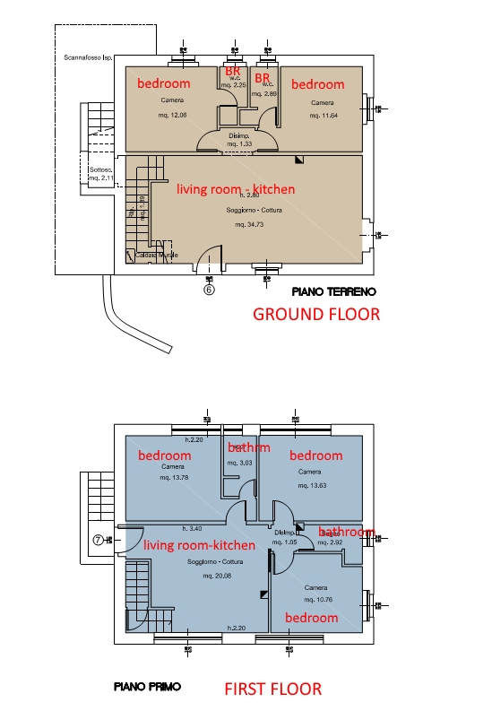
A separate two-storey cottage has been fully restored into a 4 bedroom guest house.
In 2011 a solar panel system was installed and guarantees electricity supply.
The 27 hectares (64 acres) of agricultural land surround the property with is 5 hectares (12.3 acres) of organic vineyards, an olive grove with 150 trees, arable land and private forest with mature oaks. The vineyards were planted in 2004/2005 with Merlot, Cabernet Franc, and Sangiovese vines with an annual production of some 20.000 bottles of IGT Toscana wines.
The property is owned by a private company managing the agricultural land and tourism hospitality renting the main house as a private villa for exclusive holidays and reaching 20 weeks of vacation rental per year, earning a substantial income.
Type: 27 hectares (64.2 acres) farmstead with vineyards and olive grove including swimming pool, a 545 sqm/5866 sq ft former farmhouse with a 14th-century tower restored and with several units and bedrooms, a separate 145 sqm 1560 sq ft two-storey former barn restored as a guest cottage, landscaped gardens, vineyards and agricultural land.
Layout:
Main house:
On three levels, 420 sqm.
Ground Floor: a spacious open plan living area with dining and kitchen, a guest toilet. With separate entrance a second kitchen with dining room and an office with laundry
First Floor: 3 separate accesses, with living areas with kitchen, and a total of 8 bedrooms and 6 bathrooms
Second floor: top of the tower with an open plan living space with a study
Cottage
Annex on two levels, 140 sqm, divided in two separate apartments, one on each floor, that can be connected to each other.
Ground Floor: living room with kitchenette and fireplace, 2 bedrooms with ensuite
First Floor: living room with kitchenette, 3 bedrooms, 2 bathrooms
Year of construction: 1300s
Year of restoration: 1999– solar panels installed in 2011
Condition: excellent
Land: 26 hectares (64.2 acres) of agricultural land consisting of 4 ha/9.88 acres of arable land, 2.5 ha/ 6.1 acres of pasture, forest, olive grove with 150 trees, approx. 5 ha/12.35 acres of organic IGT Toscana vineyards, cultivated with 30% Merlot, 30% Cabernet Franc, 18% Sangiovese vines and remaining Alicante Bouchet with an annual potential of roughly 20,000 bordolese-size bottles
Swimming Pool: 13.5 x 5 m pool
Outdoors:
The patio features a large outdoor dining table, perfect for shady relaxing and informal dining, and there is also a BBQ grill and outdoor cooking area to prepare delicious local food feasts. The private large swimming pool is reachable via a paved path. The pool has a ladder on one side. Manicured gardens surround the property for complete privacy.
Utilities: Phoneline l internet l LPG central heating l Water: mains/city water supply + 1 well l Electricity + 20 kw solar panels
Facilities:
Air conditioning in upper bedrooms
Barbecue
Dishwasher
Fireplace
Laundry room with washing machine and ironing facilities
Private covered parking
Satellite TV
Distance to services: 5 km/3 miles
Distance to main airports: Florence 85km/50 miles, Perugia 119 km/73 miles
Access: 1.5 km/1 mile gravel road
Siena 21km, Florence 80km
Energy Class G
View all our properties on our website casatuscany.com.
Address: Siena, Tuscany
Location type: Rural
Condition: Restored
Bedrooms: 13
Bathrooms: 10
Property size: 470 sqm
Land size: 27 hectares
A notary is a qualified lawyer who is employed by the Italian government. When you are buying Italian property, it is a notary who conducts the legal transfer of a property from vendor to buyer, and prepares the deed of sale, checks there are no charges on the property, title issues and with the assistance of a technician such as a geometra or architect, checks the property conforms to all planning issues.
It is always the buyer and not the vendor who pays the purchase taxes due and who pays the notary fees also. This means that it is up to the buyer which notary is used. In practice it is usually one of the local notaries and we can recommend which one to use and which one is cheapest, as notary prices do vary.
We provide a detailed list of all fees and taxes (including the notary’s quote) before you sign any contracts.
Translator – if you do not speak fluent, enough to understand detailed legal contracts, you will need to have a translator at the notary deed. Your agent or the notary will usually arrange this so you don’t need to worry about it. The cost varies but is often 200-300 euros. This can sometimes be shared with the vendor if they are also non fluent in Italian.
This depends firstly on two things.
A. Are you buying as a resident or a non resident?
B. Are you buying from private individuals or from a company?
If you are buying from private individuals, then the taxes you pay are based on the cadastral value – a nominal value which each property has and which depends on its size, location, standard etc – nothing to do with the market value.
Example 1:
House price agreed €100,000.
Property belongs to private sellers.
Cadastral value of the property €32,000.
Let’s say you intend buying the house as a non resident (.ie. you do not intend moving to Italy permanently and applying for residency).
Taxes payable are 9% on cadastral value €32,000 so €2,880 plus a few smaller fixed taxes.
Or, if you intend moving to live in the house permanently, applying for Italian residency, then as long as you don’t already own another property in Italy;
Taxes payable are 2% on cadastral value €32,000 so €640 plus a few smaller fixed taxes. A minimum figure may be payable.
Please note, you could buy the house as a resident and pay the lower rate of tax if you intend moving there and obtaining residency within the next 18 months. Don’t be tempted to do this unless you are definitely sure you will become a resident. If you then do not, you need to pay the difference in taxes plus a penalty of around 30%.
If there is substantial land (not just a garden) with the property, then 15% is payable on the value attributed to the land, which can be quite low, eg a value of €15,000 could be attributed to the land so 15% of 15,000 = €2,250 would be the tax on the land.
Example 2:
House price €100,000
Property is being sold by a company
Cadastral value of the property is €32,000
Let’s say you intend buying the house as a non resident (i.e. you do not intend moving to Italy permanently and applying for residency).
Taxes payable are 10% VAT on full market price €100,000 so €10,000 plus a few smaller fixed taxes.
Or, if you intend moving to live in the house permanently, applying for Italian residency, then as long as you don’t already own another property in Italy,
Taxes payable are 4% VAT on €100,000 so €4,000 plus a few smaller fixed taxes.
Once we know
– which house you want to buy, its cadastral value and who owns it (company/individual)
– whether you intend to buy as a resident/non resident and if it’s your first property in Italy
only then can we ask the notary to provide a quote for the precise taxes payable.
Other circumstances
Then of course there are other scenarios.
If the value of the property you want to buy is very low (eg €50,000) then purchase costs are likely to be a higher percentage as there are set minimums to pay for all fees and taxes. So on a €50,000 house, you are likely to pay 12-15% instead of 10% (non resident).
You might want to buy a property (being sold by private individuals) with your company. Taxes are considerably higher in this case, as they would be 9% on the sale price (not on the cadastral value). So it’s cheaper to buy a privately owned property as a private individual, not as a company.
But, in the case of a country property which is a farm/winery/agriturismo, these are often owned by a farming company (azienda agricola) , which has considerable tax advantages as you can buy the farm and pay just 0-1% (depending on the circumstances) on the purchase price in tax.
Taxes would be different for a commercial purchase, eg if your company is buying an Italian company (ie a farm or other company). Buying the shares of a company usually meets zero taxes, just a few fixed fees, and notary and accountancy fees.
The above is a guide, and once you have found a property you are interested in buying, we can obtain a notary quote for you, with a full breakdown of the taxes and fees due.
Notary fees – approx 1-2%, more for a lower priced property due to some fixed taxes.
Agency fees – in Italy both buyer and seller pay the agent. These are payable to the Italian agent (one of our partners) you view the house with at compromesso (preliminary contract) stage and for each party are usually 3% plus VAT. VAT is 22% in Italy. Minimums apply. Nothing is payable to Casa Tuscany so you will not pay double the fees, you will just have double the assistance!
Compromesso registration fees – approx €380 plus a part payment of taxes which is deducted from the total taxes due at completion.
Translator for the deed signing at the notary’s office. Required if you do not speak Italian well enough to understand legal deeds. Approx cost €250 – €350 depending on the notary.
Technical report for the notary. Checks all the planning issues of the property, making sure it matches the official plans, no works have been carried out without permission, gathers all previous permits, checks the house is sellable and not illegal in any way. Carried out by a geometra, architect or engineer and costs vary considerably, a minimum of €761 including VAT/ Please note this report is NOT a structural survey, that is an optional additional report you may wish to instruct.
Local council tax – IMU (formerly ICI) – payable only by non residents. This needs to be paid twice a year at the post office – no bill is sent. Most people use a local accountant or property manager to calculate it.
Refuse tax (TARI)
In some areas, mountain community tax.
If you buy a property which is part of a condominium, e.g. with shared pool and grounds, lighting etc, then there will be annual condominium fees to pay which usually range from about €200 to €1000/year unless it is a particularly luxurious property with many amenities in which case costs could be higher.
Utilities
You don’t really need an Italian bank account for buying a property in Italy any more as money is usually sent by bank transfer, although some notaries insist the funds are sent from an Italian account set up by you.
You could of course open an account to handle bills but bear in mind that some utilities companies refuse to arrange direct debits for non resident accounts, and some bills cannot be paid by direct debit.
You could always pay your bills online or if you have a property manager then send them the funds for settling all the bills.
If you do intend opening an Italian bank account, bear in mind that Italian bank charges are high . Usually there is a monthly fee to pay, plus charges for receiving money, paying bills, sending statements, etc etc.